Модулна кухня Сити 9192 – модерно вдъхновение и изтънчена функционалност
Сити 9192 е модулна система обзавеждане за кухня, която комбинира естетика и интелигентен дизайн в съвършена хармония. Кухнята е решена в изискан контраст между матови МДФ фронтове в модерно зелено и гланцирани бели горни шкафове, подчертани от елегантен черен гръб и плот с мраморен ефект. Изчистените линии се комбинират с изтънчени акценти в златисто и създават усещане за лукс и съвременност.
✔️ Дизайн и разпределение
Кухненското пространство включва Г-образна конфигурация с остров, предлагаща максимална ефективност и стил. Вградените уреди са функционално интегрирани – фурна, микровълнова, хладилник, както и богато оборудвани шкафове с рафтове, витрини и чекмеджета. Вътрешното LED осветление, изцяло скритите механизми и плавното затваряне на вратите и чекмеджетата гарантират тиха, плавна и елегантна работа.
Иновативният остров с мраморен плот и декоративни бар столове със златисти детайли създава не само практично, но и стилно място за хранене или срещи.
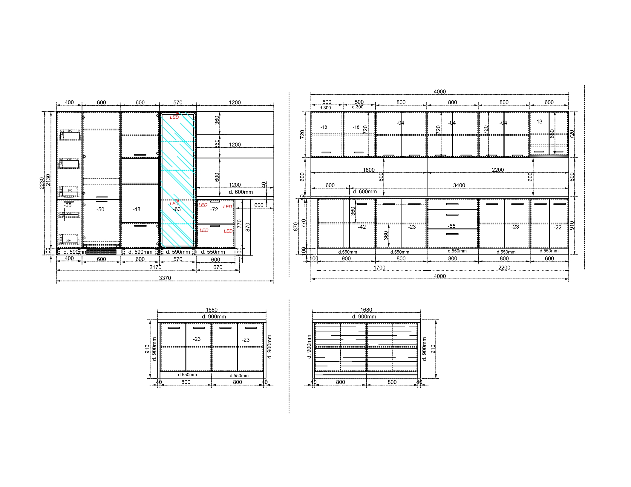
Размери на модулна кухня с термоплот Сити 9192:
● Долен ред кухненски шкафове:
Ширина 3390 мм. / Дълбочина 4000 мм./ Височина 2230 мм.
● Остров:
Ширина 1680 мм. / Дълбочина 900 мм./ Височина 910 мм.
Дълбочина на шкафовете под плод: 550 мм.
● Горен ред кухненски шкафове:
Ширина 4000 мм. / Дълбочина 300 мм./ Височина 720 мм.
● Термоплот размери:
Ширина 1200 мм. / Дълбочина 600 мм./ Височина 38 мм.
Ширина 3400 мм. / Дълбочина 600 мм./ Височина 38 мм.
Ширина 1680 мм. / Дълбочина 600 мм./ Височина 38 мм.
Ширина 870 мм. / Дълбочина 600 мм./ Височина 38 мм.
Ширина 870 мм. / Дълбочина 600 мм./ Височина 38 мм.
Цветове модулна кухня Сити 9192 (на изображенията):
● Лице – МДФ Олив мат / МДФ Крийм гланц
● Корпус – Мока
● Термоплот – Мрамор Палазо
Материали модулна кухня Сити:
● Лице МДФ 18 мм.
● Корпус ЛПДЧ 16 мм., кант 0,45 мм.
● Термоплот – 38 мм.
● ПВЦ цокъл с алуминиево покритие - 4 компл.
● Дръжки № 286 – 160 мм.
Особености и екстри модулна кухня Сити 9192:
● Кухня Сити е модулна кухня и дава възможност за проектиране на кухня според вашите нужди. Избор на горни и долни кухненски шкафове Сити за създаване на индивидуална конфигурация.
● Тази кухня е част от богата модулна система с 16 вида лица и 3 вида корпуса, които могат да се съчетават безкрайно.
● Витрини с LED осветление
● Кухненски шкафове с механизми за плавно затваряне.
● Възможност за избор на модел дръжка, като цената подлежи на корекция.
● Възможност за избор от множество термоплотове и термогърбове.
● Възможност за избор от множество модули с различни размери и функционалност.
● Възможност за избор от множество декори за лице и корпус.
● Възможни цветови съчетания – разгледайте в допълнителни снимки към продукта..
* В цената не са включени – термогръб, водобран, тапи и ъгли, присъединителни лайстни, декоративни елементи, мивки, батерии и електроуреди.
✔️ Защо да изберете модулна система обзавеждане за кухня?
Сити 9192 е част от модулни мебели за кухня, които позволяват пълна персонализация. Клиентът може да избере и поръча отделни модули, за да създаде уникално кухненско решение, съобразено с пространството и индивидуалните нужди.
Модулното обзавеждане за кухня позволява свобода при подредбата – можете да промените разположението, да добавите нови шкафове или рафтове, или да създадете собствена дизайнерска визия. Това прави системата изключително гъвкава, подходяща както за големи, така и за компактни помещения.
✔️ За кого е подходяща?
Тази серия модулни кухни МДФ е перфектно решение за:
✔ Модерни апартаменти и ново строителство
✔ Градски домове с търсене на лукс и функционалност
✔ Кухни с отворени пространства и островна зона
✔ Интериори в стил минимализъм, съвременен лукс или елегантна класика
✔️ Стил, който усещате всеки ден
С модулното обзавеждане за кухня Сити 9192 не просто обзавеждате – вие създавате пространство, което вдъхновява. Това е мястото, където практичността среща стила, а ежедневието се превръща в удоволствие. Всяко чекмедже, всеки модул носи усещането за премереност, стил и уют.
✔️ Свържете се с нас
Готови ли сте да превърнете кухнята си в елегантно и функционално бижу? Свържете се с нас за консултация и персонална поръчка на вашата нова модулна кухня с лице МДФ. Ние ще ви помогнем да създадете мечтания кухненски интериор.
















